SALON Z KUCHNIĄ
Lokalizacja: Gliwice
Projektowana powierzchnia: 60m2
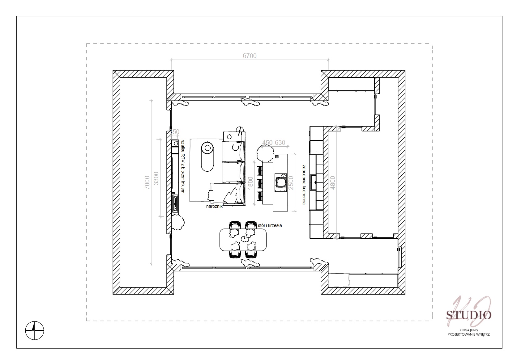
Przytulna strefa salonu utrzymana w stonowanych, beżowych i brązowych barwach. Zabudowa telewizora
z biokominkiem zapewnia miejsce do relaksu i odpoczynku. W tej przestrzeni znalazło się również miejsce na stół
i krzesła do komfortowego spożywania posiłków. W kuchni króluje beż i marmur. Spora zabudowa meblowa oraz wyspa pozwalają na wygodne przygotowywanie posiłków. Strefa kuchni otwarta jest na salon dzięki czemu całe wnętrze jest przestronne i jednocześnie przytulne.









