PRZYTULNE MIESZKANIE
Lokalizacja: Bielsko-Biała
Projektowana powierzchnia: 50m2
W tym mieszkaniu główną rolę grają książki i koty.
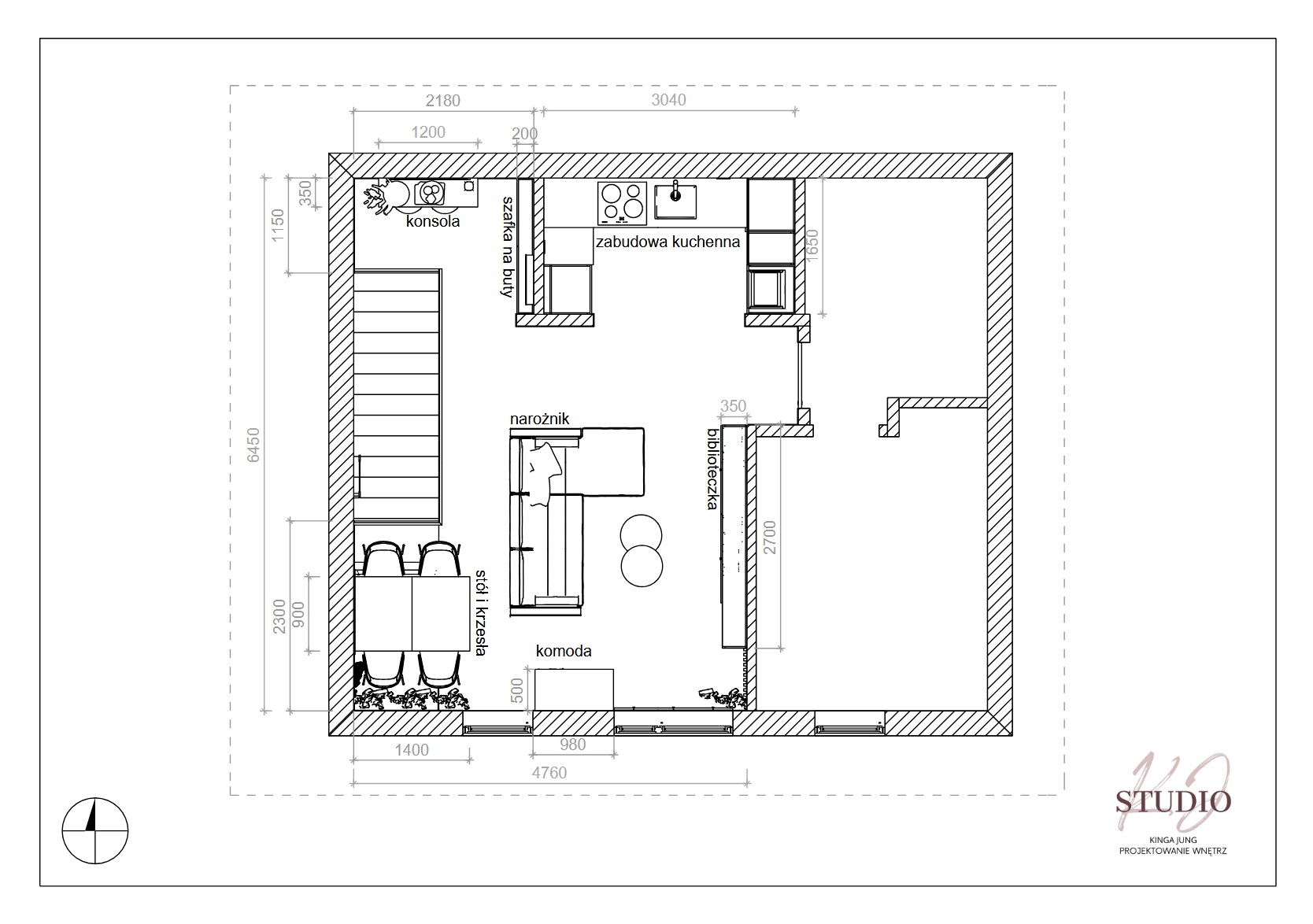
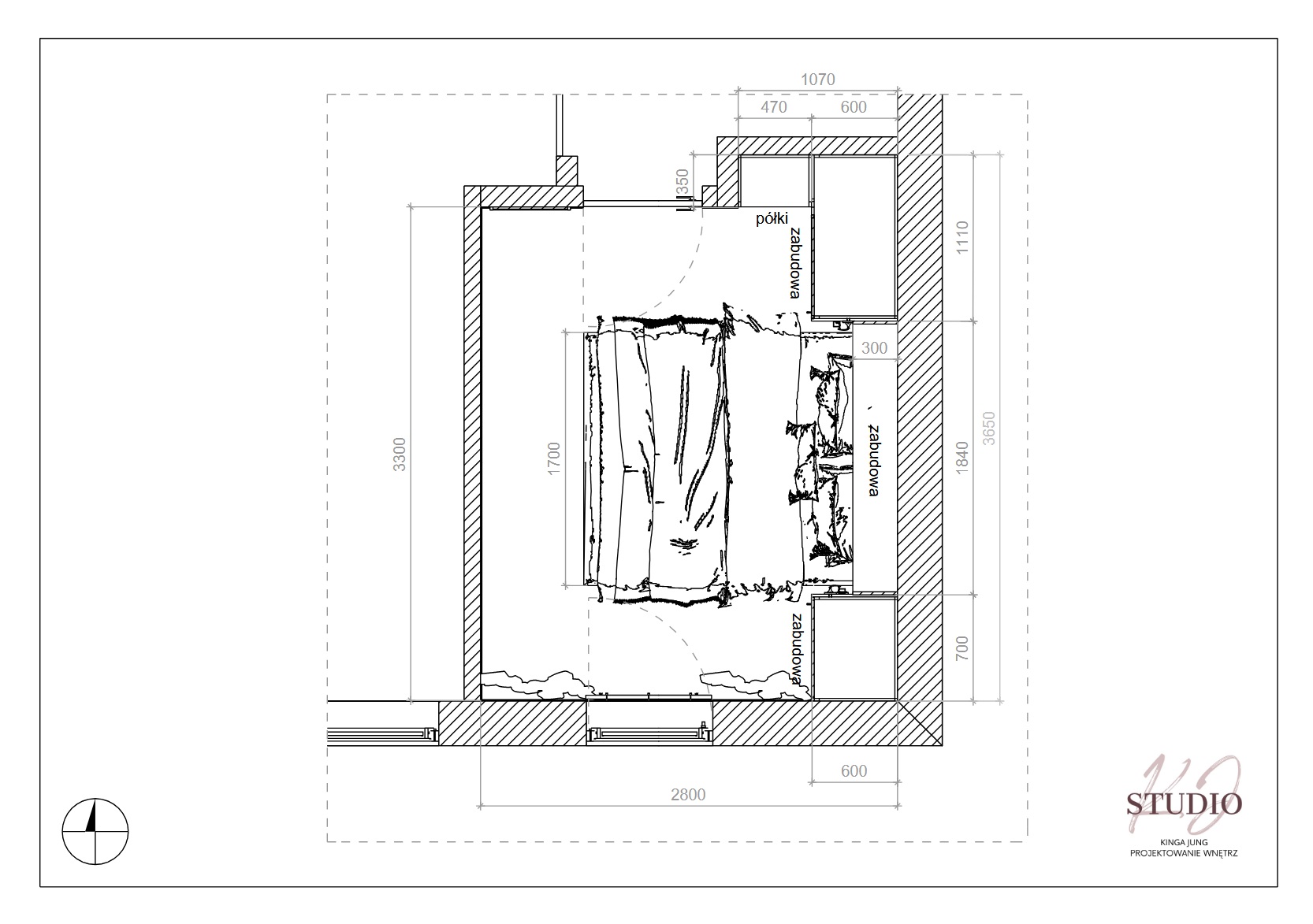
W salonie mamy pojemną biblioteczkę a prócz tradycyjnych półek zawiera ona boksy, które można dowolnie układać. Niewielki aneks kuchenny zawiera wszystkie niezbędne sprzęty. W wysokiej zabudowie znajduje się pralka oraz piecyk, który został przeniesiony z sąsiadującej łazienki. W sypialni zabudowa meblowa wokół łóżka stanowi główne miejsce do przechowywania. Całość utrzymana jest w jasnych barwach,
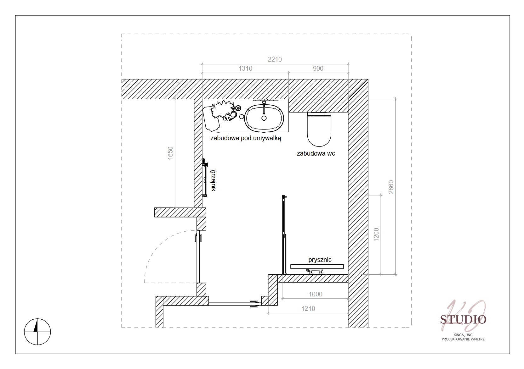
a uzupełnieniem aranżacji jest tapeta z subtelnym wzorem. W łazience królują płytki z patchworkowym wzorem całość została uzupełniona o drewnopodobne akcenty. Meble zaprojektowane pod wymiar pozwoliły
na maksymalne wykorzystanie przestrzeni.
W salonie mamy pojemną biblioteczkę a prócz tradycyjnych półek zawiera ona boksy, które można dowolnie układać. Niewielki aneks kuchenny zawiera wszystkie niezbędne sprzęty. W wysokiej zabudowie znajduje się pralka oraz piecyk, który został przeniesiony z sąsiadującej łazienki. W sypialni zabudowa meblowa wokół łóżka stanowi główne miejsce do przechowywania. Całość utrzymana jest w jasnych barwach,
a uzupełnieniem aranżacji jest tapeta z subtelnym wzorem. W łazience królują płytki z patchworkowym wzorem całość została uzupełniona o drewnopodobne akcenty. Meble zaprojektowane pod wymiar pozwoliły
na maksymalne wykorzystanie przestrzeni.
WIZUALIZACJE























