MIESZKANIE W KĘTACH
Lokalizacja: Kęty
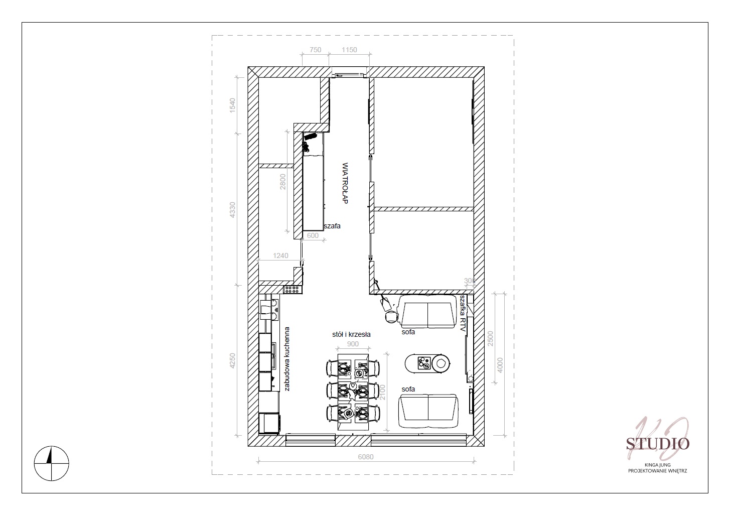
Projektowana powierzchnia: 51m2
W wiatrołapie najdziemy pojemną szafę z siedziskiem
oraz lustro, czyli wszystko to, co jest niezbędne, by stworzyć funkcjonalną przestrzeń. Część dzienna w mieszkaniu to salon połączony z jadalnią i kuchnią. Znalazło się tu miejsce na dwie sofy oraz zabudowę telewizora z miejscem
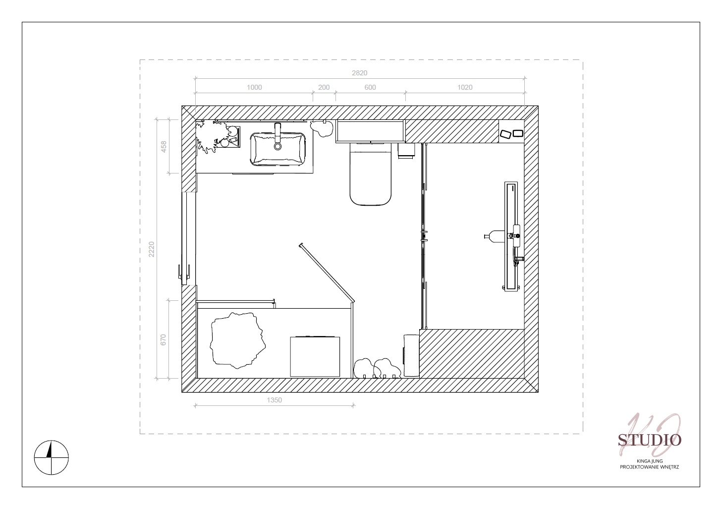
do przechowywania. Kuchnia jest otwarta na część dzienną. Zabudowa do sufitu pozwala uzyskać wiele miejsca do przechowywania. Zdecydowanym dopełnieniem jest szklana witrynka. W łazience zastosowano drzwi prysznicowe wnękowe oraz zabudowę meblową, która pozwala
na ukrycie pralki oraz zapewnia miejsce do przechowywania. Całe mieszkanie jest spójne, utrzymane w szarej kolorystyce
z czarnymi akcentami i dodatkiem drewna.
















