MIESZKANIE NA PODDASZU
Lokalizacja: Oświęcim
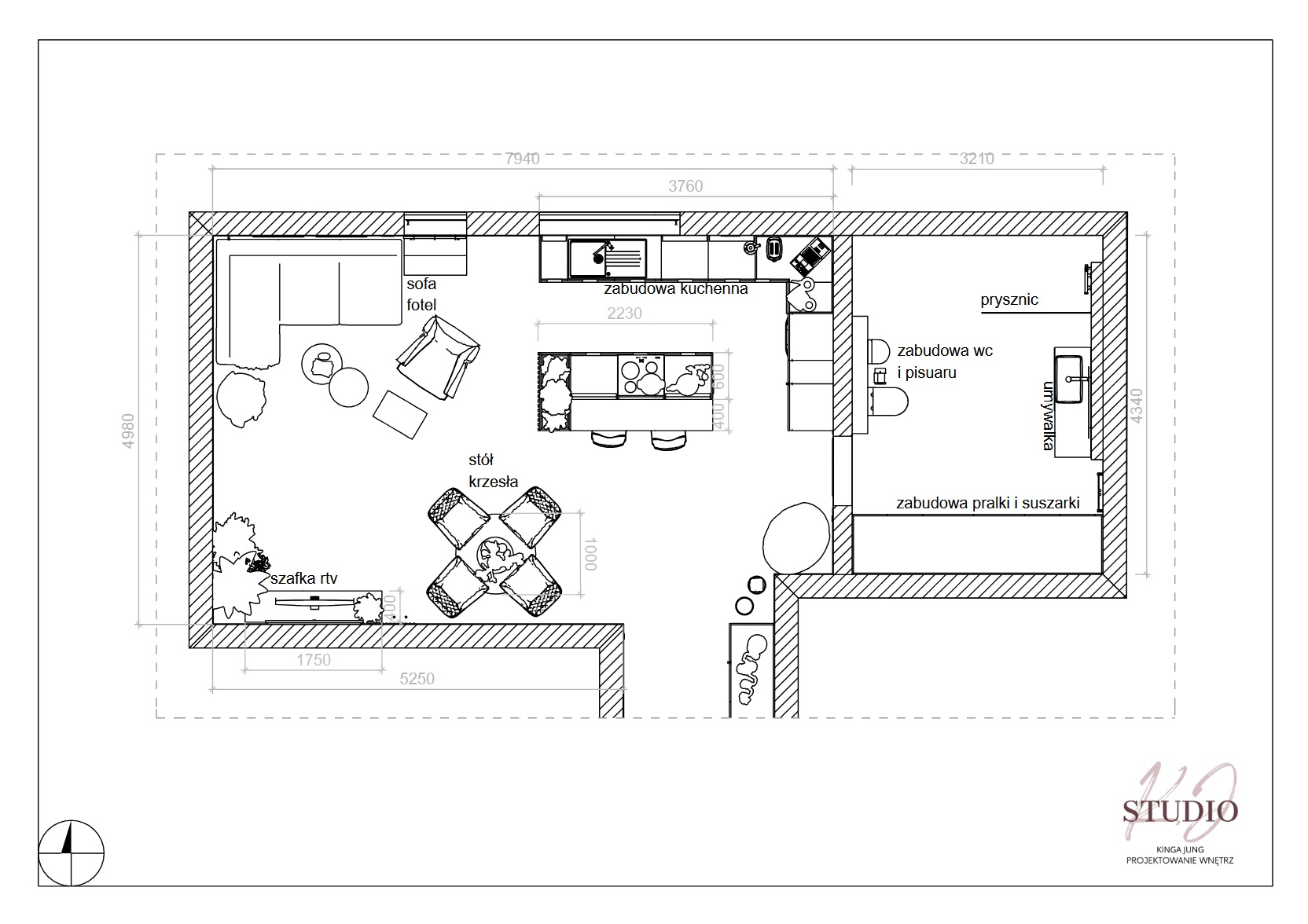
Projektowana powierzchnia: 50m2
W tym mieszkaniu na poddaszu kuchnia otwarta jest na salon. Zabudowa kuchenna w kolorze kaszmiru została uzupełniona drewnianymi i czarnymi elementami. Przestrzeń kuchni wyznacza wsypa, która służy jako miejsce do przygotowywania i spożywania posiłków. Dodatkowo na wyspie znalazł się zielnik, dzięki czemu świeże zioła można mieć zawsze pod ręką. W salonie mamy wszystko to, co jest potrzebne do relaksu
i spędzania czasu w rodzinnym gronie. Wygodna sofa, fotel idealny do czytania książek i rozkładany stół
na wspólne kolacje. W przestronnej łazience królują beżowe płytki oraz kontrastujące, ciemne dodatki. Element drewna ociepla wnętrze, a spora zabudowa meblowa zmieści pralkę, suszarkę oraz przestrzeń
do przechowywania środków czystości.
i spędzania czasu w rodzinnym gronie. Wygodna sofa, fotel idealny do czytania książek i rozkładany stół
na wspólne kolacje. W przestronnej łazience królują beżowe płytki oraz kontrastujące, ciemne dodatki. Element drewna ociepla wnętrze, a spora zabudowa meblowa zmieści pralkę, suszarkę oraz przestrzeń
do przechowywania środków czystości.










