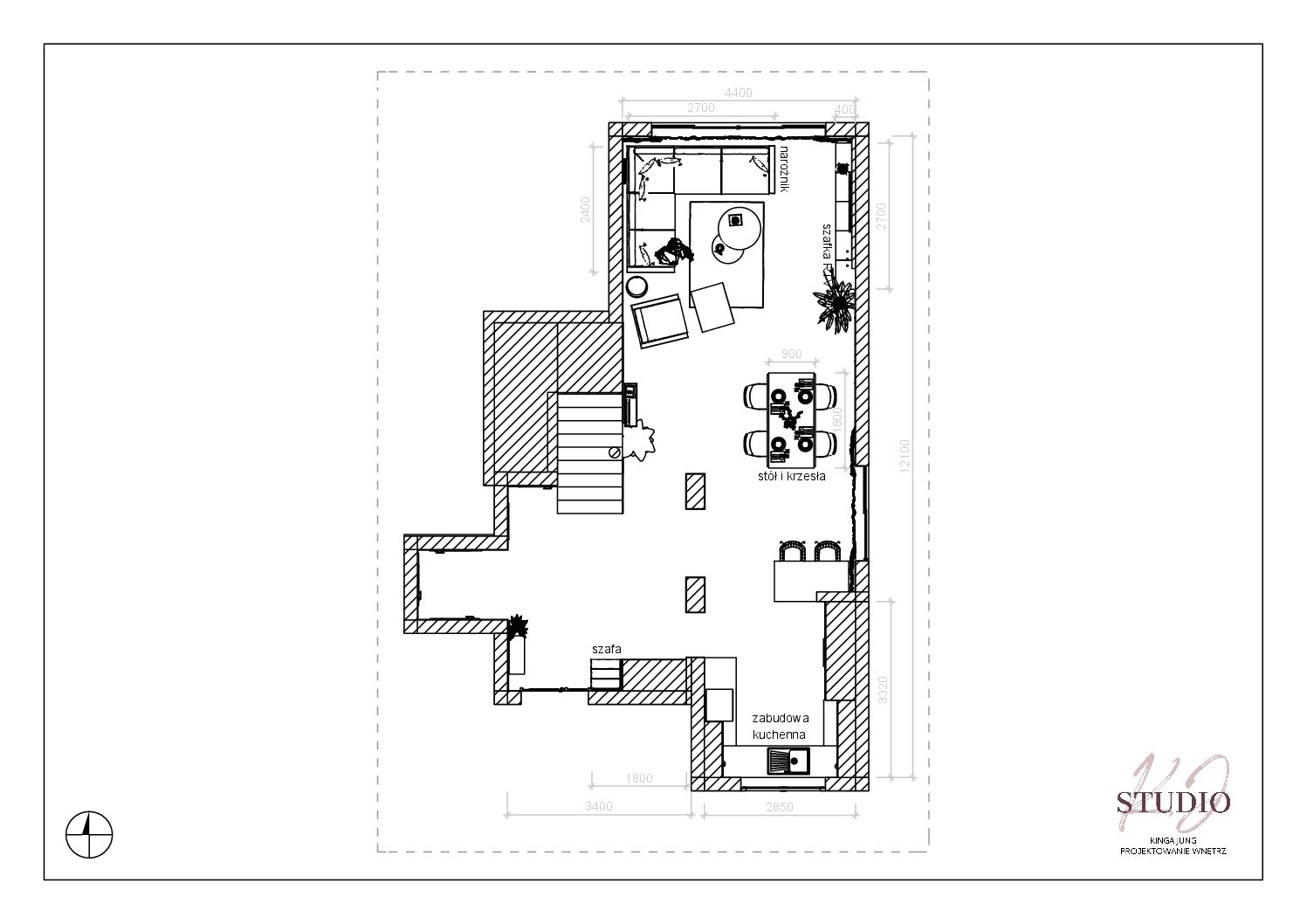
DOM W ROCZYNACH
Lokalizacja: Roczyny
Projektowana powierzchnia: 62m2
Projekt parteru w domu jednorodzinnym. We Wnętrzu dominują jasne i ciemne odcienie szarości uzupełnione czarnymi dodatkami oraz elementami drewna. W kuchni oraz na zabudowie strefy
z telewizorem został zastosowany konglomerat kwarcytowy.















