Dom w nowoczesnym wydaniu Oświęcim

DOM W NOWOCZESNYM WYDANIU

Lokalizacja: Oświęcim
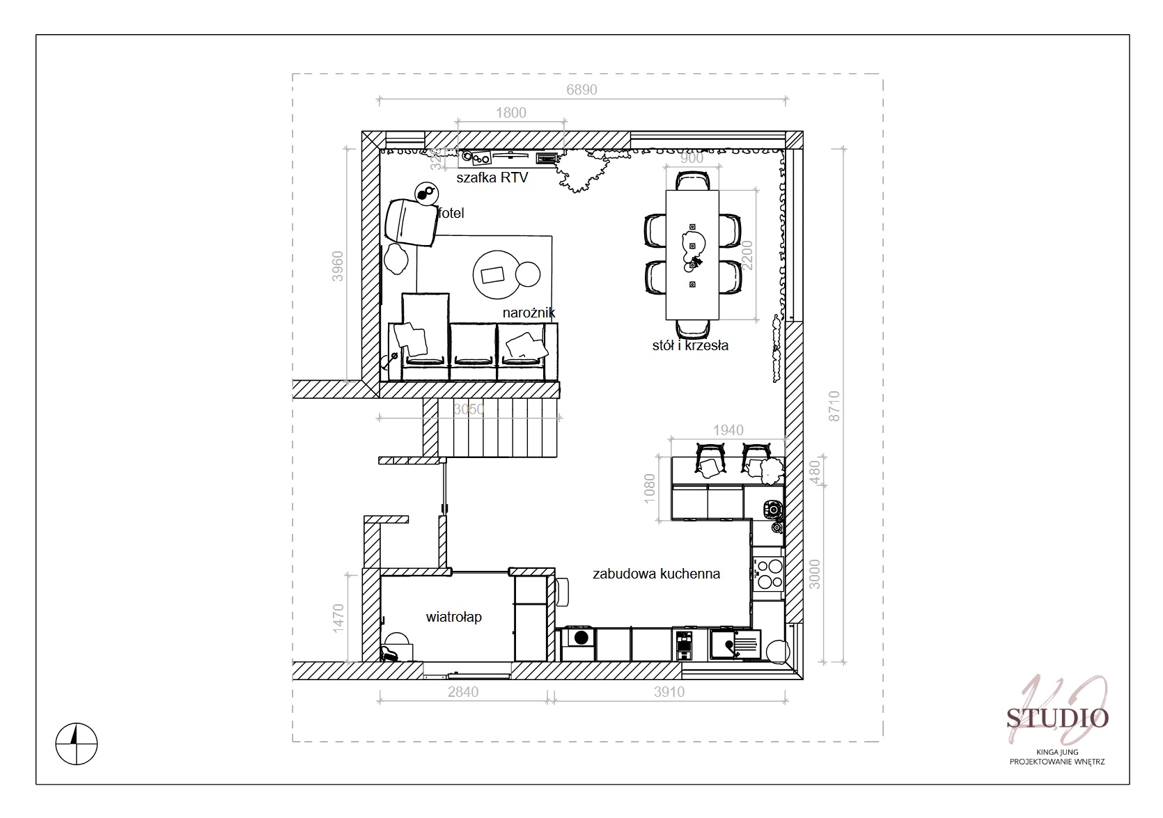
Projektowana powierzchnia: 70m2

W wiatrołapie znajduje się: duża szafa na buty
i ubrania, która skrywa również skrzynkę elektryczną, podręczna półeczka na klucze, duże lustro
z podświetleniem led. Całość utrzymana jest
w ciepłej, beżowej tonacji. Kontrastu dodają czarne ażurowe drzwi prowadzące do części dziennej. Kuchnia zaprojektowana została w kształcie litery U. Zabudowa meblowa to połączenie jasnych frontów
z drewnianym akcentem. Charakteru dodają tu czarne elementy jak okap, czy oświetlenie szynowe.
W salonie tło dla sofy stanowi jasna tapeta
o geometrycznych kształtach, która kontrastuje
z płytą meblową w ciemnym odcieniu drewna.
Fotel wykończony tapicerką w rudym kolorze, to detal który przyciąga wzrok. W sypialni dominują beże, które występują w pozostałych wnętrzach domu. Wzrok przyciąga tu strefa łóżka z tapicerowanym zagłówkiem oraz kontrastującym drewnem
na ścianach.
Scroll to Top